820 Fuller Street, Ann Arbor, MI 48104 • Thirty-one two- and three-bedroom apartments near the Medical Center make an ideal location for graduate students, undergrads, and professionals. Convenient yet secluded, just north of Central Campus with easy access to Rackham Graduate School, the Nursing School, the Medical Campus, U of M bus stops, the farmer’s market, and more! Just a 10-15 minute walk to downtown shopping and dining. (map)

Availability: 7/1/26, 8/1/26, 8/23/26
2 bedroom apartment available January 1, 2026 for $1800 per month – live or zoom tours available
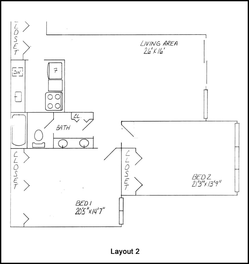
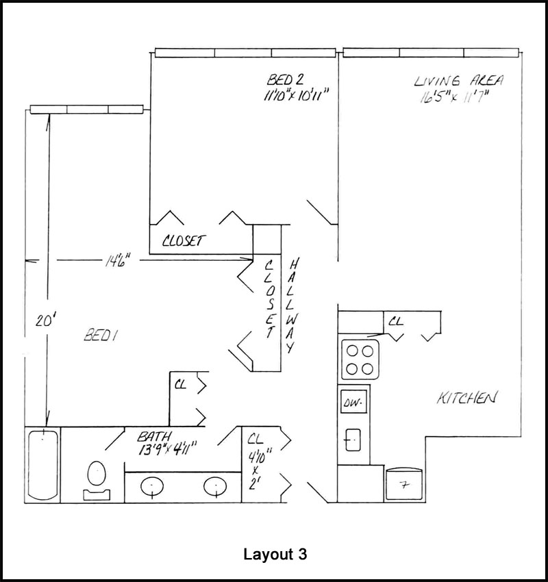
2 Bedroom: $1,800 – $2,200 per month
- 2 bedrooms, 1 bath, 900-1,100 sq. ft.
- one and a half month deposit required
3 Bedroom Conversions: $2,000 – $2,400 per month
- 2 bedroom apartment with living room converted to extra bedroom
- one and a half month deposit required
Property Manager: Sy Berman (248-996-7524, a2management@comcast.net)
Leasing Office: 1955 Pauline Blvd, Suite 200, Ann Arbor, MI 48103
Application, lease, and other information here.
Utilities included: heat, water, garbage
Tenant responsibility: electric, cable
Parking: One spot is included. A second spot can be purchased for $100/month as long as there are spaces still available.
Laundry: Coin-operated washers and dryers are available in the first floor laundry room.
Furniture: The apartments are furnished, but pieces can be removed by the landlord if not required.
Other amenities: patio/balcony, gas heat, air conditioning, dishwasher, stove, refrigerator, garbage disposal, pantry, security system, additional individual storage units in basement, elliptical and treadmill available soon























